- 項目概述
- 項目方案
- 項目工藝
- 項目設備清單
- 項目現場照片
2017年7月,同高科技承接了長安汽車在重慶基地S111產能擴建項目,負責對S111頂蓋激光釬焊工位進行“交鑰匙工程”。通過對工藝設備的優化,極大的提升車身頂蓋激光焊接的質量,提高車身焊接合格率。

根據客戶需求,該項目采用單工位布局,2臺激光焊接機器人及1臺車頂抓手搬運機器人,車頂抓手搬運機器人安裝在地面,規劃2車型。方案設計可達到3車型+30JPH生產能力,實現了高柔性、高節拍、高質量的“三高”要求。
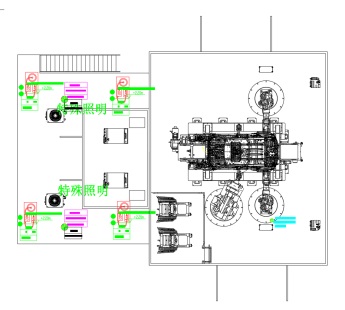
項目設計方案如下圖所示:

2D布局圖

3D效果圖
項目詳細信息如下:
? 單工位30JPH+3車型柔性生產,節拍CT=102s;
? 該工位目前規劃3車型,可通過改造-在搬運機器人對側新增一臺機器人實現6車型規劃,實現高柔性,高節拍,高質量生產要求;
? 改造后的產線,通過對工藝設備和焊接參數的優化,相比原有生產線提高了車身的焊接質量;
? 激光釬焊系統采用世界先進主流工藝設備配置,可實現高品質焊接質量要求;
? 工位采用同高科技自主研發的雙層鋁合金的防護系統,并通過德國TUV安全檢測及認證;

工位外部布局

工位內部布局
項目激光釬焊系統設備配置如下:


激光源房

中文
English

